Overview

Centrally located and updated valley rancher is move-in ready. Sunny living room with arched doorways. Galley kitchen has stainless appliances, shaker maple cabinets, granite counters and a kitchen eating space. Large & bright bedrooms. 2 large main floor bedrooms plus a third egress bedroom and full bath down. Oversized laundry/utility room offers plenty of storage. New interior paint and LVP flooring. Situated on .22 acre with a beautiful backyard that is ready for hot summer nights. Vinyl fence. Circular drive for easy access, too. Central Valley schools.

Property Type Single family
MLS # 202615866
Year Built 1953
Parking Spots 1
Garage Detached
pattern image
Inside-Media-McDonald-1
pattern white image

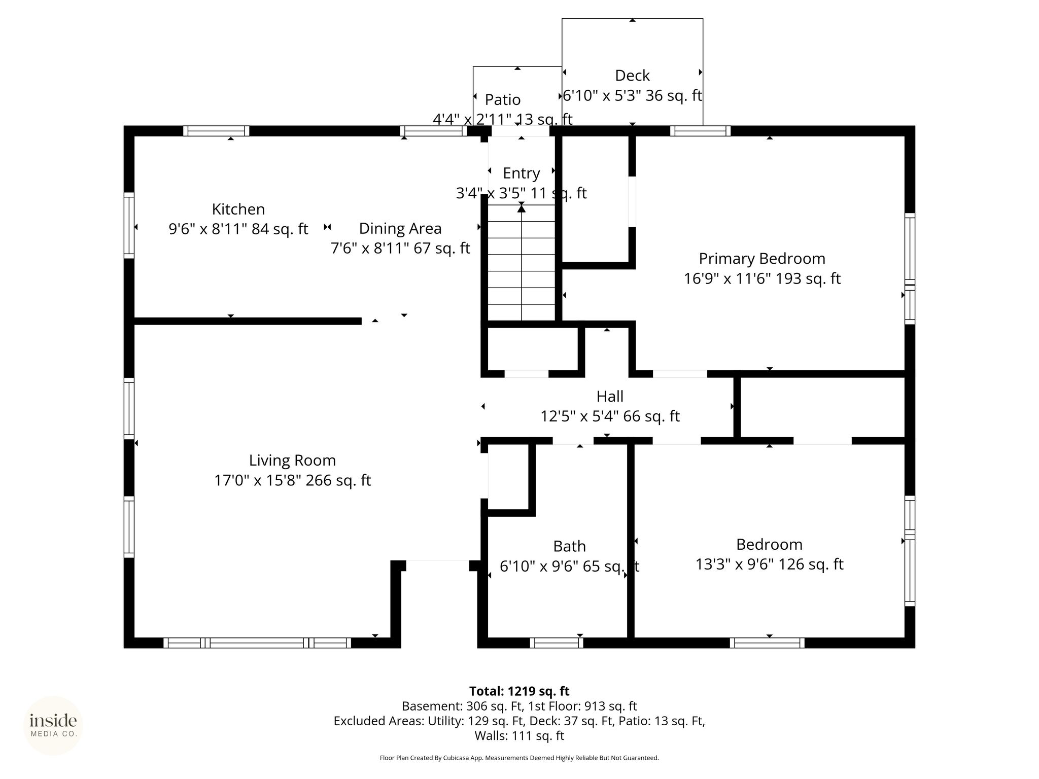
Floor Plans

pattern white image
pattern white image

Videos

309 N McDonald Rd Spokane Valley, WA
pattern image

Location

pattern image