Overview

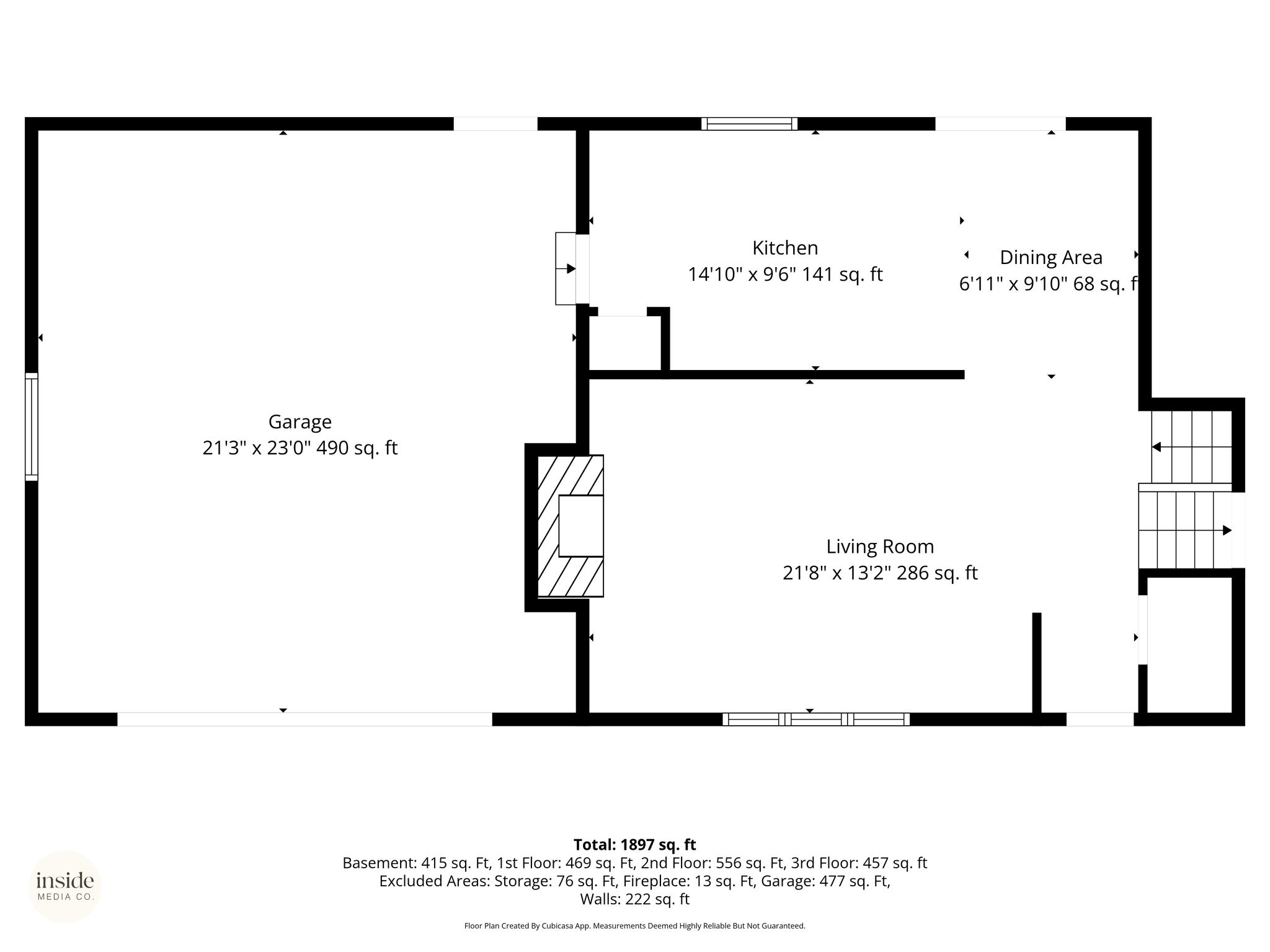
Experience the perfect mix of space, comfort, and location in this well-maintained Spokane Valley 4-level home. With 4 bedrooms and 2 bathrooms, the flexible layout fits a variety of living needs. The main level features a spacious living area with a cozy fireplace, while the efficient galley kitchen includes newer appliances for easy everyday cooking with informal dining. Upstairs offers two bedrooms, including the primary suite with double closets and an attached full bath. The lower levels provide two additional bedrooms, a bathroom, laundry, and an oversized family room with another fireplace, perfect for relaxing, entertaining, or extra living space. Step outside to a fully fenced backyard on nearly 1/3 acre with sprinkler system and mature landscaping, ideal for outdoor living. Adjacent to Sunrise Elementary playfields and conveniently located in the Central Valley School District near shopping and dining. This is a must-see!

Property Type Single family
Year Built 1977
Parking Spots 2
Garage Attached
pattern image
Inside-Media-Calvin-1
pattern white image

Floor Plans

pattern white image
pattern white image

Videos

2021 S Calvin Rd, Spokane Valley, WA 99037, USA

Presented by

/
user headshot
Lara Ramsay
RealVantage (509) 981-3235 DRE: 21010728
pattern white image

Get in touch

Thank you!

Your message is sent.

We will be in touch with you soon.

pattern image

Location

pattern image