Overview

Discover a rare opportunity to own a tranquil rural retreat just minutes from the city. Nestled on nearly 6 acres, this property offers a blend of country serenity and practical amenities — perfect for hobby farms, RV enthusiasts, animal lovers, or those simply seeking space to roam. When you are not using your 30x40 Stimson built shop (insulated, with power), make friends with the year round moose and deer! Enjoy the calming feel of a sunset off your back covered patio. Complete with a fenced back yard, animal barn, large storage buildings and a 600sqft stick built structure that could be converted into an ADU, home office, man-cave, she-said or whatever your imagination needs. Home is being sold as-is. Bring your tool belt and a little elbow grease and put on the finishing touches. Priced well under comp range and perfect for an investor or someone handy! Possibilities are waiting! By appointment only. Reach out today!

Property Type Mobile home
MLS # 202526086
Year Built 2007
Parking Spots 4
Garage Detached
pattern image
Inside-Media-Clear Lake-3
Inside-Media-Clear Lake-33
pattern white image

Features

check mark icon Stimson Built Large Shop w/ electricity
check mark icon Updated Kitchen
check mark icon Private Gated Access
pattern white image
pattern white image

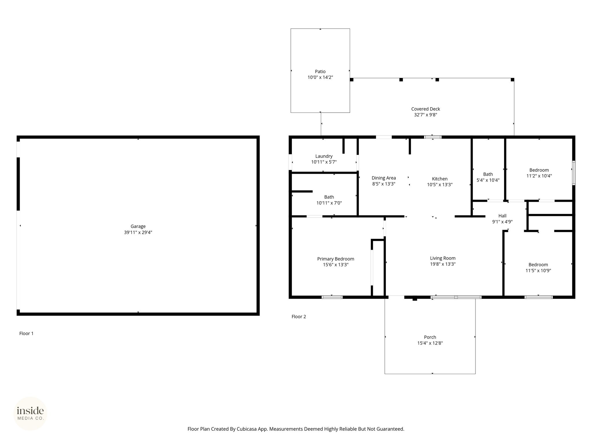
Floor Plans

pattern white image

Presented by

/
user headshot
Matt Raby
Owner | Managing Broker Raby & Company (509) 939-7411 DRE: 21000330
pattern white image

Get in touch

Thank you!

Your message is sent.

We will be in touch with you soon.

pattern image

Location

pattern image