Overview

Privately tucked into a serene hillside setting on 2.9 acres, this exquisite new construction 5-bedroom, 5-bath luxury residence plus a 1-bedroom, 1-bath ADU offers refined design, exceptional functionality, and custom craftsmanship at every turn.

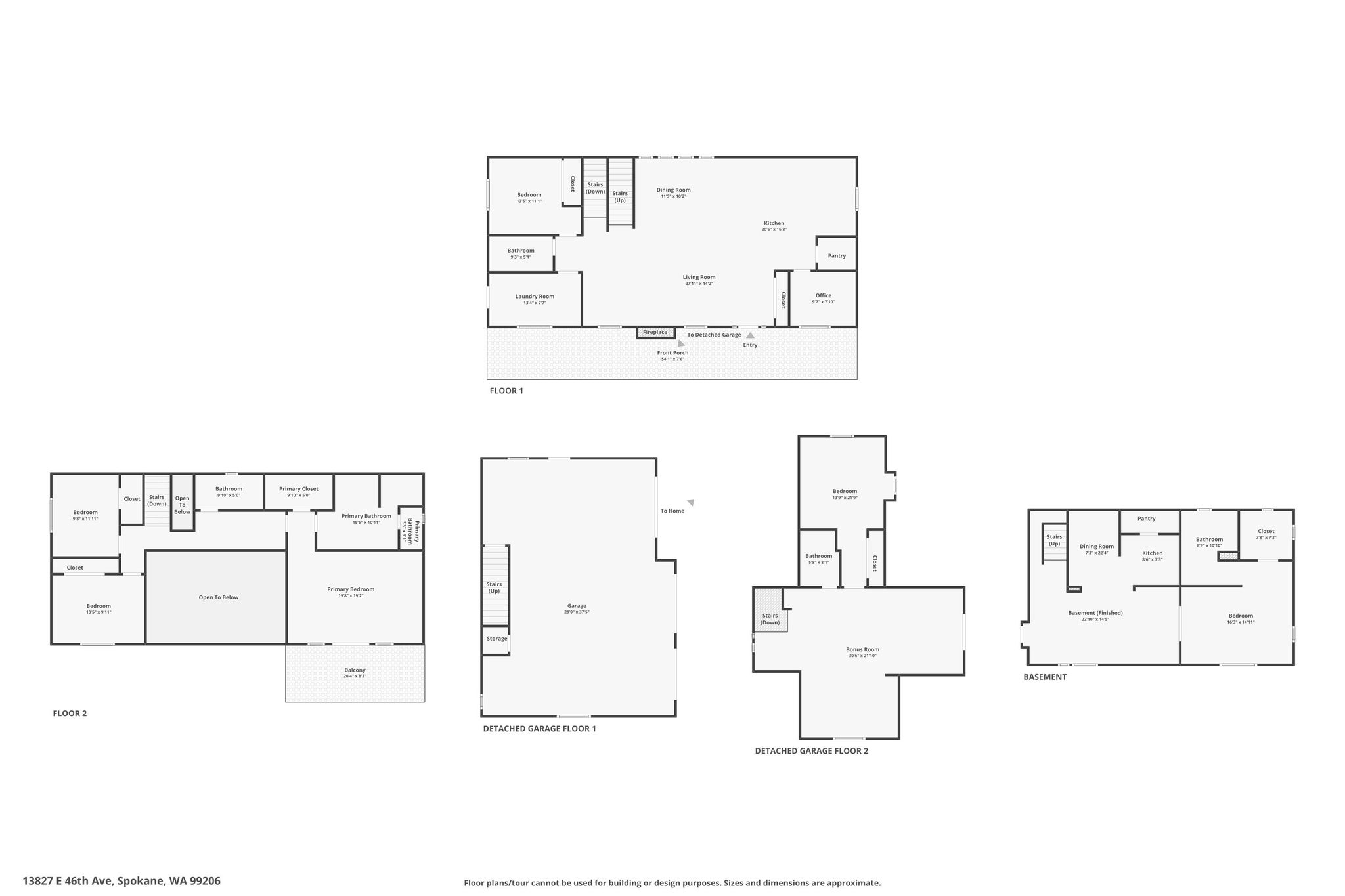
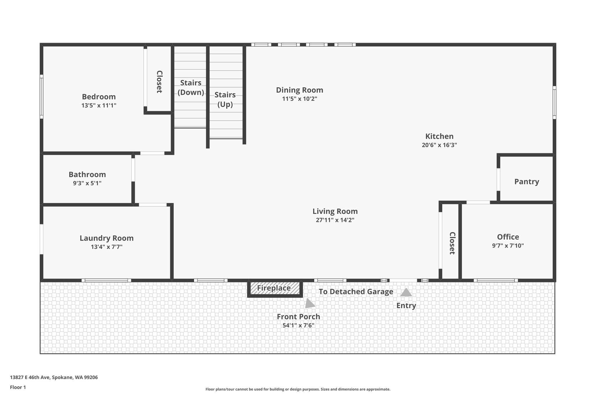
The main floor is designed for effortless entertaining and elevated everyday living, featuring an open-concept layout with vaulted ceilings, oversized windows that flood the home with natural light, and a dramatic custom stone fireplace creating a warm, inviting centerpiece. The chef’s kitchen is a true statement of style and performance with custom knotty alder cabinetry, hard-surface countertops, and a premium suite of Forno appliances, including a 60” dual refrigerator, 48” 8-burner gas range with dual convection and rotisserie, pull-out microwave, two dishwashers, and two sinks perfectly suited for hosting everything from intimate dinners to large gatherings. The main level is complete with a bedroom, office, full bath, and a thoughtfully placed laundry/mudroom for everyday convenience.

Upstairs, the home continues to impress with a spacious primary retreat offering a private balcony and a spa-inspired bath, your own peaceful escape at the end of the day, along with two additional bedrooms and another full bath. The lower level provides incredible flexibility with a private suite ideal for guests or multi-generational living, featuring a living room, informal dining space, a kitchenette with bar seating, and an ensuite bath highlighted by a 72” soaking tub, plus an additional guest bathroom.

Step outside to discover the finished 3-bay garage and the private above-garage ADU, offering generous off-street parking and RV space, creating even more opportunity for extended living, hosting, or a private getaway space. Additional upgrades include 400-amp service, multiple HVAC systems, a mini split, and more ensuring comfort, capability, and peace of mind.

All of this is conveniently located close to downtown Spokane, with easy access to grocery stores, restaurants, and nearby trails offering the perfect blend of privacy and connection to everything you love.

Property Type Single family
Year Built 2026
Garage Detached
pattern image
Inside-Media-46th-1
Inside-Media-46th Twilight-3
pattern white image

Features

check mark icon High Ceilings
check mark icon Large Kitchen
check mark icon New Construction
check mark icon Open Floor Plan
check mark icon Quiet and Private
check mark icon Large Lot
check mark icon Shopping Nearby
check mark icon Walk-In Closets
pattern white image

3D Tour

Zillow 3D tour
pattern white image
pattern white image

Floor Plans

pattern white image
pattern white image

Videos

13827 East 46th Avenue, Spokane, 99206 Washington, US_Luxury Listing
13827 East 46th Avenue, Spokane, 99206 Washington, US_Premium Reel

Presented by

user headshot
Kyle Krug
Luxury Specialist John L Scott (509) 951-8792
pattern white image

Get in touch

Thank you!

Your message is sent.

We will be in touch with you soon.

pattern image

Location

pattern image